Faqs Schaden melden Wohnungs Angebote
Leo

Hallo, ich bin Leo, Ihr digitaler Assistent. Brauchen Sie Hilfe?

Ja, gerne! Vielleicht später.
Nummer: 5000/S4279/015/602

Exklusive Lage | PROVISIONSFREI

Gärtnerstraße 1a, 63450 Hanau

Kosten
Nettokaltmiete Mietpreis auf Anfrage
Nebenkosten 4,00 €/m²
Kaution auf Anfrage
Gebäude
Baujahr 2022
Heizungsart Zentralheizung
Energieträger Fernwärme
Energieausweis Bedarfsausweis Wärmewert 100.00 kWh/(m²*a) Stromwert 1.00 kWh/(m²*a)
Daten
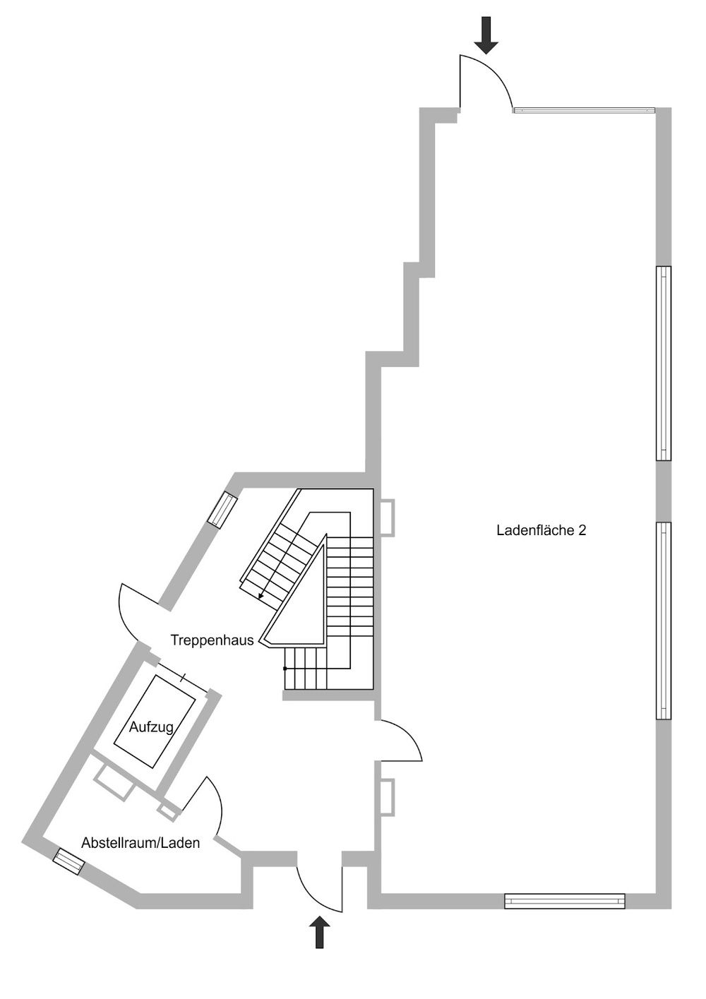
Nutzfläche 119,95 m²
Gewerbeart Büroflache, Praxis
Jetzt anfragen Alle Bilder ansehen

Lage

Freuen Sie sich auf Ihre Wohnung mit attraktiver Innenstadtlage und vielen Standortvorteilen! Der großzügig angelegte Durchgang an der Hahnenstraße verbindet den Platz an der Wallonisch-Niederländischen Kirche mit dem Kinopolis Hanau. Kürzer ist da nur der Weg zum Einkaufen: Supermärkte befinden sich im nahen Wohnumfeld. Die Innenstadtlage Ihrer neuen Wohnung im "PhillipsTor" garantiert Ihnen eine perfekte Nahversorgung sowie eine ideale Verkehrsanbindung.

sehr gute Verkehrsanbindung:
mit dem Auto ca. 30 Min. bis Frankfurt HBF, ca. 25 Min. bis Frankfurt Flughafen
mit ÖPNV ab Hanau West ca. 26 Min. bis Frankfurt HBF, ca. 45 Min. bis Frankfurt Flughafen

Nahversorgung vor Ort: Supermärkte, Discounter, Bäcker, Drogerien, Apotheken, Banken, Friseure, Restaurants

ärztliche Versorgung: Krankenhäuser, Allgemeinmediziner, Frauenärzte, Zahnärzte und weitere Fachärzte in unmittelbarer Nähe

Kindergärten und Schulen: Kitas sowie Grund- und weiterführende Schulen fußläufig erreichbar

Kultur- und Freizeitangebot: Kinopolis Hanau, Cafés und Restaurants, diverse Freizeiteinrichtungen, verschiedenste Sportvereine, Fitnessstudios und Schwimmbad mit Sauna in direkter Umgebung

Ausstattung

Das Neubauprojekt "PhillipsTor bereichert Hanau mit 153 Mietwohnungen und 3 modernen Gewerbeeinheiten. Der Standort der Liegenschaft gestaltet sich durch die hervorragende Innenstadtlage und dem angrenzenden Platz der Wallonisch-Niederländischen Kirche als sehr attraktiv. Mit den neuen Wohngebäuden entstehen auch umfangreiche Fahrradabstellplätze und Tiefgaragenstellplätze.

Angeboten wird hier eine moderne und energieeffiziente Gewerbeeinheit mit ca. 119,95m² Gesamtfläche im Erdgeschoss eines Neubaus. Der Zutritt ist barrierefrei.

Genießen Sie die Vorzüge dieser modernen, komfortablen und energieeffizienten Immobilie. Sie haben gute Möglichkeiten der individuellen Gestaltung.

Die Ladenfläche eignet sich zum Beispiel für alle Arten des Einzelhandels, Nachhilfe und Hausaufgabenbetreuung, Blumenladen, Café, Fahrschule, Praxis für Physiotherapie und Versicherungsbüro. Gerne können Sie uns bei Ihrer Anfrage auch Ihr Konzept zur Anmietung beschreiben.

Mietpreis: ab 12 Euro pro m² Grundmiete
,,,, zuzüglich 2,50 Euro pro m² Betriebskosten
,, zuzüglich 1,50 Euro pro m² Heizkosten
zuzüglich MwSt.
PKW-Stellplätze: Individuelle Vereinbarung
Ausbau: Nach Absprache
*Erstbezug*
Großflächige Fensterfronten
Mietbeginn: nach Vereinbarung

Außenstellplätze unmittelbar am Eingang der beiden Gewerbeflächen können nach individueller Vereinbarung angemietet werden.

Überzeugen Sie sich von den Möglichkeiten dieser modernen Gewerbefläche in guter Hanauer Lage. Gerne besichtigen wir mit Ihnen. Wir freuen uns auf Ihre Anfrage!

Objektbeschreibung

Das "PhilippsTor" verbindet städtisches Leben und eine ruhige Wohnlage zu einem einzigartigen Zuhause! Im großzügigen und begrünten Innenhof mit Mietergärten im Erdgeschoss finden sich allgemeine Grünflächen mit einem Kinderspielplatz und Sitzgelegenheiten, die zum Entspannen und Zusammenkommen einladen.

Die neuen Wohngebäude "PhilippsTor" wurden in Bauweise nach dem Energiestandard KfW55 errichtet. Im Zusammenspiel mit dem Wärmedämmverbundsystem zeichnen sich die 1- bis 4-Zimmer-Wohnungen durch ihren sehr geringen Energiebedarf aus, was sich für Umwelt und für Sie als Mieter gleichermaßen auszahlt.

Mit den neuen Wohngebäuden sind auch umfangreiche Fahrradabstellplätze und Tiefgaragenstellplätze entstanden.

Meine NHW. Mein Zuhause.

  • Bezahlbare Mieten mit unbefristetem Vertrag
  • Kostenloser Reparaturservice
  • 24-Stunden-Notruf mit Notfall-Service
  • Kostenlose Mieter-App und Mieterzeitung
  • 24 Stunden Erreichbarkeit durch unseren digitalen Assistenten Leo
  • Vergünstigte Konditionen für Carsharing, E-Bikesharing und E-Ladesäulen
  • Standortabhängig: Für unsere Mieter keinen Winter-, Mülltonnen- oder Putzdienst.

Jetzt anfragen

Wie wir mit Ihren Daten umgehen, erfahren Sie in unseren Pflichtinformationen zum Datenschutz nach Art. 13/14 DSGVO unter nhw.de/datenschutz.